Projekt domu Projekt domu za miastem



Przedstawiamy projekt domu za miastem z użytkowym poddaszem.
Koncepcja została opracowana i skierowana do inwestorów, poszukujących funkcjonalnych rozwiązań, a przy tym niewielkiego metrażu potrzebnego do zbudowania domku.
Pomysł na realizację zadowoli osoby, które marzą o postawieniu chatki za miastem, w której będą mogli znaleźć spokój, ciszę i wytchnienie po ciężkim tygodniu lub myślą o takiej realizacji pod inwestycję i wynajem. Jednak nie musi to być tylko inspiracja do postawienia domku letniskowego. Bez problemu pomysł można zrealizować przy budowie domku do życia na co dzień – jako alternatywa dla mieszkania. Mimo niewielkich gabarytów w domku tym spokojnie mogą mieszkać 2-3 osoby.
I choć bryła budynku to klasyczna stodoła to z konwencjonalną i prostą koncepcją projekt ten ma niewiele wspólnego.
minimalny wymiar działki | 12.00 x 15.00 m | |
wysokość | … m | |
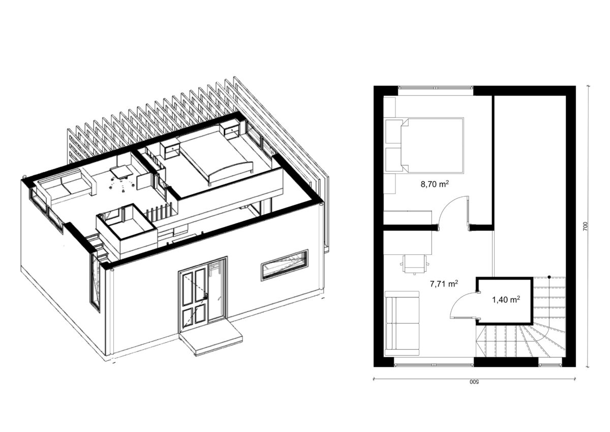
powierzchnia podlogi | 43,7 m2 |
powierzchnia zabudowy | … m2 | |
kąt nachylenia dachu | …° |
Zakres prac
Płyta fundamentowa to kompletny, przygotowany „start” pod montaż budynku stabilny, równy i dobrze zaizolowany. W ramach prac wykonujemy wykop oraz jeśli warunki gruntowe tego wymagają wymianę gruntu w celu uzyskania odpowiedniej nośności i ograniczenia osiadań.
Następnie wykonujemy rozprowadzenie kanalizacji pod płytą wraz z podejściami, przepustami i wyprowadzeniami zgodnie z projektem.
Przygotowujemy również przejście (wejście) wody do budynku oraz przepust/wyprowadzenie pod zasilanie elektryczne, tak aby instalacje były gotowe bez kucia i przeróbek na późniejszym etapie. Pod płytą układamy izolację termiczną z XPS o grubości 10 cm, która ogranicza straty ciepła do gruntu i poprawia parametry energetyczne strefy posadowienia. Na końcu wykonujemy równą płytę fundamentową o kontrolowanej geometrii (rzędne, poziomy), przygotowaną pod precyzyjny montaż prefabrykowanego budynku. Dzięki temu montaż przebiega sprawnie, a cała konstrukcja pracuje stabilnie od pierwszego dnia.
Standard podstawowy obejmuje wykonanie prefabrykowanej konstrukcji drewnianej szkieletowej oraz jej montaż na budowie. Przegrody zewnętrzne wykonywane są w technologii prefabrykacji z ciągłą, sklejoną warstwą paroizolacyjną, zapewniającą wysoką szczelność powietrzną budynku. Standard umożliwia przeprowadzenie próby szczelności (blower door) z wynikiem n50 < 1,0 1/h, typowym dla budynków o podwyższonych wymaganiach energetycznych (w tym pasywnych). W zakresie standardu przewidziano:
- Elewację zewnętrzną wykonaną na gotowo.
- Montaż stolarki okiennej i drzwi zewnętrznych w standardzie „ciepłego montażu”: mocowanie na prenitach/łącznikach montażowych, uszczelnienie warstwowe taśmami — od strony wewnętrznej połączenie z warstwą paro-/powietrznoszczelną, od strony zewnętrznej zabezpieczenie w strefie złącza zgodnie z zasadą „szczelniej wewnątrz niż na zewnątrz”.
- Konstrukcję dachu na dźwigarach, ocieplenie połaci dachu zasypem z celulozy 30 cm oraz wykonanie pokrycia dachu.
- Ściany wewnętrzne wykonane jako otwarte z jednej strony, przygotowane do prowadzenia i montażu instalacji.
- Ściany zewnętrzne zakończone przedścianką instalacyjną, umożliwiającą prowadzenie instalacji bez naruszania warstwy szczelnej (paroizolacji).
Wykończenie do stanu deweloperskiego to etap, w którym dom zyskuje pełną funkcjonalność i jest przygotowany pod finalne prace wykończeniowe. W ramach prac wykonujemy komplet niezbędnych instalacji: elektryczną, wodno-kanalizacyjną, ogrzewanie (zgodnie z projektem i uzgodnionym standardem) oraz wentylację mechaniczną z rekuperacją.
Rekuperacja zapewnia stałą, kontrolowaną wymianę powietrza i odzysk ciepła, co przekłada się na mniejsze straty energii, lepszą jakość powietrza, mniejszą wilgoć i wyższy komfort na co dzień. Dodatkowo wykonujemy komin spalinowy do kominka wraz z doprowadzeniem powietrza do spalania, przygotowany pod montaż wkładu kominkowego.
Następnie wypełniamy ściany działowe izolacją (akustyczną/termiczną zależnie od przegrody), po czym wykonujemy zamknięcie ścian płytami GK wraz z przygotowaniem powierzchni pod dalsze wykończenie. Całość domykają posadzki, wykonane równo i w poziomie, gotowe pod ułożenie warstw finalnych. Efektem jest dom w standardzie deweloperskim: z rozprowadzonymi mediami, wykonaną wentylacją z rekuperacją, przygotowanym kominem pod kominek oraz gotowymi przegrodami i posadzkami.
Kotłownia i źródło ciepła to kompletne przygotowanie oraz wykonanie instalacji grzewczej wraz z doborem i montażem urządzeń – zgodnie z projektem, zapotrzebowaniem budynku i preferencjami inwestora. W zależności od standardu i dostępnych mediów możemy zrealizować różne warianty źródła ciepła oraz konfiguracje kotłowni. Możliwe warianty źródła ciepła / kotłowni:
- Pompa ciepła powietrze–woda (najczęściej wybierana) – z buforem i/lub zasobnikiem CWU.
- Pompa ciepła gruntowa – wyższa stabilność pracy, wymaga dolnego źródła (odwierty/kolektor).
- Kocioł gazowy kondensacyjny (jeśli jest przyłącze gazu) – z zasobnikiem CWU.
- Kocioł na pellet / biomasę – z zasobnikiem paliwa i odpowiednim odprowadzeniem spalin.
- Ogrzewanie elektryczne (np. kable/maty lub piec elektryczny do CO/CWU) – proste instalacyjnie, zależne od taryf i cen energii.
- Kominek jako źródło dodatkowe (rekreacyjne/awaryjne) – z doprowadzeniem powietrza, opcjonalnie z dystrybucją ciepła lub płaszczem wodnym (jeśli projekt przewiduje).
- Hybryda (np. pompa ciepła + grzałka, pompa ciepła + PV, gaz + pompa) – dopasowana do budżetu i warunków.
Typowe elementy w zakresie kotłowni (w zależności od wariantu):
- uruchomienie i podstawowa regulacja instalacji.
- montaż urządzenia grzewczego i osprzętu (armatura, zabezpieczenia, pompy obiegowe),
- zasobnik CWU / bufor (jeśli wymagane),
- rozdzielacze i automatyka sterująca,
Projekt domu za miastem
Projekt domu za miastem
FAQ
Tak, wszystkie oferowane przez nas domy (zarówno modułowe, jak i szkieletowe) są budynkami całorocznymi. Dzięki doskonałej izolacji termicznej i nowoczesnej technologii prefabrykowanej, domy te zapewniają optymalny mikroklimat i komfort cieplny o każdej porze roku, będąc jednocześnie tanimi w utrzymaniu.
Tak, nasza oferta obejmuje kompleksowe wsparcie inwestora. Oprócz samej budowy, pomagamy w dopełnieniu niezbędnych formalności administracyjnych. Naszym celem jest maksymalne odciążenie klienta, tak aby jego rola mogła ograniczyć się do akceptacji projektu, podpisania umowy i odebrania kluczy do gotowego domu.
Dzięki wykorzystaniu technologii prefabrykacji, proces budowy jest znacznie krótszy niż w przypadku metod tradycyjnych. Sam montaż konstrukcji na placu budowy trwa zazwyczaj od 2 do 4 dni. Łączny czas realizacji inwestycji – od momentu rozpoczęcia prac do stanu gotowego do odbioru – wynosi średnio około 3 miesięcy, zależnie od wielkości i stopnia skomplikowania projektu.
Stawiamy na najwyższą jakość i trwałość, dlatego do produkcji wykorzystujemy drewno lite oraz certyfikowane drewno KVH klasy C24 sprowadzane ze Skandynawii. Stosujemy rozwiązania wiodących producentów, co pozwala nam tworzyć domy energooszczędne, które spełniają, a nawet przewyższają aktualne normy dotyczące ochrony środowiska i emisji CO2.
Zobacz podobne Domy tradycyjne
BUDOWA DOMÓW MODUŁOWYCH W 3 MIESIĄCE
Dzięki właściwej organizacji pracy możemy połączyć w jednym czasie: prefabrykacje elementów w fabryce z robotami ziemnymi i posadowieniem fundamentów na placu budowy. Średni czas montażu na placu budowy to 2-4 dni. Krótki czas budowy i przewidywalny koszt inwestycji to oszczędność czasu i pieniędzy
Dom to coś więcej niż projekt i materiały – to przestrzeń, w której codzienność staje się spokojniejsza, a życie po prostu dobrze się układa. W tej galerii pokazujemy gotowe domy prefabrykowane, które powstały z drewna w technologii lekkiego szkieletu – energooszczędne, funkcjonalne i dopasowane do różnych potrzeb. Każdy z nich ma swój charakter, ale łączy je podejście oparte na prostocie, wygodzie i harmonii z otoczeniem. Inspirujemy się stylem skandynawskim, który stawia na jasne wnętrza, naturalne materiały i rozsądne rozwiązania. Budujemy z myślą o tym, by dom dobrze służył na co dzień – niezależnie od tego, czy ma 50 czy 150 metrów. Jeśli szukasz pomysłu na swój przyszły dom, być może właśnie tutaj znajdziesz coś, co będzie dobrym początkiem.







