Projekt domu Nowoczesna Stodoła 179




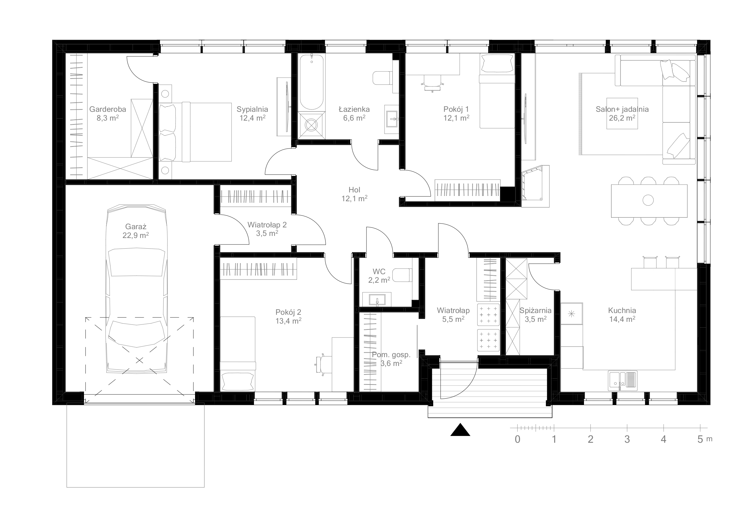
Dom oferuje trzy sypialnie, w tym główną z dużą garderobą (6,6 m²), a także gabinet, który może służyć jako pokój gościnny lub miejsce do pracy. Dwie łazienki, pralnia, aż cztery garderoby, funkcjonalna kotłownia i duży korytarz (20,9 m²) dopełniają całości, tworząc idealne warunki do życia na jednym poziomie.
Dzięki przemyślanej bryle i stylowi inspirowanemu Skandynawią, dom ten łączy estetykę z energooszczędnością i wygodą użytkowania.
minimalny wymiar działki | 29,12 x 25,2 m | |
wysokość | 6,05 m | |
powierzchnia podlogi | 179.6 m2 |
powierzchnia zabudowy | 220 m2 | |
kąt nachylenia dachu | 40° |
Zakres prac
Wykończenie pod klucz to kompletny etap wykończeniowy, w którym dom zostaje doprowadzony do stanu gotowego do zamieszkania z wykonanymi okładzinami, łazienkami, podłogami, drzwiami wewnętrznymi, malowaniem i pełnym montażem osprzętu oraz wyposażenia zgodnie z ustalonym standardem. To rozwiązanie dla osób, które chcą odebrać dom w pełni wykończony, bez koordynowania ekip i pilnowania dziesiątek decyzji po drodze.
Aby przyjąć zlecenie „pod klucz” i rzetelnie je wycenić, inwestor musi posiadać projekt wnętrza (zakres materiałów, układ funkcjonalny, punkty instalacyjne, zestawienia i standard wykończenia). Na jego podstawie przygotowujemy dokładny kosztorys oraz harmonogram prac, tak aby końcowy efekt był zgodny z założeniami estetycznymi i budżetem.
Kotłownia i źródło ciepła to kompletne przygotowanie oraz wykonanie instalacji grzewczej wraz z doborem i montażem urządzeń – zgodnie z projektem, zapotrzebowaniem budynku i preferencjami inwestora. W zależności od standardu i dostępnych mediów możemy zrealizować różne warianty źródła ciepła oraz konfiguracje kotłowni. Możliwe warianty źródła ciepła / kotłowni:
- Pompa ciepła powietrze–woda (najczęściej wybierana) – z buforem i/lub zasobnikiem CWU.
- Pompa ciepła gruntowa – wyższa stabilność pracy, wymaga dolnego źródła (odwierty/kolektor).
- Kocioł gazowy kondensacyjny (jeśli jest przyłącze gazu) – z zasobnikiem CWU.
- Kocioł na pellet / biomasę – z zasobnikiem paliwa i odpowiednim odprowadzeniem spalin.
- Ogrzewanie elektryczne (np. kable/maty lub piec elektryczny do CO/CWU) – proste instalacyjnie, zależne od taryf i cen energii.
- Kominek jako źródło dodatkowe (rekreacyjne/awaryjne) – z doprowadzeniem powietrza, opcjonalnie z dystrybucją ciepła lub płaszczem wodnym (jeśli projekt przewiduje).
- Hybryda (np. pompa ciepła + grzałka, pompa ciepła + PV, gaz + pompa) – dopasowana do budżetu i warunków.
Typowe elementy w zakresie kotłowni (w zależności od wariantu):
- uruchomienie i podstawowa regulacja instalacji.
- montaż urządzenia grzewczego i osprzętu (armatura, zabezpieczenia, pompy obiegowe),
- zasobnik CWU / bufor (jeśli wymagane),
- rozdzielacze i automatyka sterująca,
Instalacja fotowoltaiczna (PV) to system, który produkuje energię elektryczną z promieniowania słonecznego i realnie obniża koszty eksploatacji domu — szczególnie przy pompie ciepła, rekuperacji i ogrzewaniu elektrycznym. W ramach zakresu dobieramy moc instalacji do profilu zużycia, projektu budynku oraz możliwości przyłączeniowych, a następnie wykonujemy kompletny montaż i uruchomienie. Typowy zakres obejmuje:
- dobór i montaż modułów PV na dachu (lub konstrukcji naziemnej – jeśli przewidziana),
- montaż falownika (on-grid) oraz zabezpieczeń DC/AC,
- wykonanie okablowania, przepustów i podłączenia do rozdzielnicy,
- konfigurację monitoringu produkcji energii i uruchomienie instalacji,
- przygotowanie dokumentacji powykonawczej oraz wsparcie w zgłoszeniu do operatora (jeśli jest w zakresie).
Warianty (opcjonalnie):
- magazyn energii (zwiększa autokonsumpcję i niezależność),
- instalacja pod przyszłą rozbudowę (np. PV + ładowarka EV),
- optymalizatory/mikroinwertery (np. przy zacienieniach lub złożonej połaci).
Efektem jest instalacja gotowa do pracy, z pomiarem i monitoringiem, zaprojektowana tak, aby maksymalnie wykorzystać potencjał dachu i zużycie energii w domu.
Nowoczesna Stodoła 179
Nowoczesna Stodoła 179
Realizacje
Każdy dom to inna historia, ale wspólna idea – prostota, funkcjonalność i energooszczędność.
FAQ
Tak, wszystkie oferowane przez nas domy (zarówno modułowe, jak i szkieletowe) są budynkami całorocznymi. Dzięki doskonałej izolacji termicznej i nowoczesnej technologii prefabrykowanej, domy te zapewniają optymalny mikroklimat i komfort cieplny o każdej porze roku, będąc jednocześnie tanimi w utrzymaniu.
Dzięki wykorzystaniu technologii prefabrykacji, proces budowy jest znacznie krótszy niż w przypadku metod tradycyjnych. Sam montaż konstrukcji na placu budowy trwa zazwyczaj od 2 do 4 dni. Łączny czas realizacji inwestycji – od momentu rozpoczęcia prac do stanu gotowego do odbioru – wynosi średnio około 3 miesięcy, zależnie od wielkości i stopnia skomplikowania projektu.
Stawiamy na najwyższą jakość i trwałość, dlatego do produkcji wykorzystujemy drewno lite oraz certyfikowane drewno KVH klasy C24 sprowadzane ze Skandynawii. Stosujemy rozwiązania wiodących producentów, co pozwala nam tworzyć domy energooszczędne, które spełniają, a nawet przewyższają aktualne normy dotyczące ochrony środowiska i emisji CO2.
Tak, nasza oferta obejmuje kompleksowe wsparcie inwestora. Oprócz samej budowy, pomagamy w dopełnieniu niezbędnych formalności administracyjnych. Naszym celem jest maksymalne odciążenie klienta, tak aby jego rola mogła ograniczyć się do akceptacji projektu, podpisania umowy i odebrania kluczy do gotowego domu.
Zobacz podobne Nowoczesna stodoła
BUDOWA DOMÓW MODUŁOWYCH W 3 MIESIĄCE
Dzięki właściwej organizacji pracy możemy połączyć w jednym czasie: prefabrykacje elementów w fabryce z robotami ziemnymi i posadowieniem fundamentów na placu budowy. Średni czas montażu na placu budowy to 2-4 dni. Krótki czas budowy i przewidywalny koszt inwestycji to oszczędność czasu i pieniędzy
Dom to coś więcej niż projekt i materiały – to przestrzeń, w której codzienność staje się spokojniejsza, a życie po prostu dobrze się układa. W tej galerii pokazujemy gotowe domy prefabrykowane, które powstały z drewna w technologii lekkiego szkieletu – energooszczędne, funkcjonalne i dopasowane do różnych potrzeb. Każdy z nich ma swój charakter, ale łączy je podejście oparte na prostocie, wygodzie i harmonii z otoczeniem. Inspirujemy się stylem skandynawskim, który stawia na jasne wnętrza, naturalne materiały i rozsądne rozwiązania. Budujemy z myślą o tym, by dom dobrze służył na co dzień – niezależnie od tego, czy ma 50 czy 150 metrów. Jeśli szukasz pomysłu na swój przyszły dom, być może właśnie tutaj znajdziesz coś, co będzie dobrym początkiem.











