Projekt domu Projekt domu dużego




Prezentujemy projekt dużego domu – poziomkowy 2. Powierzchnia użytkowa wynosi niemalże 200 m kw, więc jest to propozycja dla osób wymagających. Skierowany jest do osób szukających domu z poddaszem oraz z garażem, które cenią sobie dużą przestrzeń i funkcjonalne rozwiązania. Propozycja uwzględnia zapotrzebowania 4 osobowej rodziny, jednak bez problemu udałoby się wygenerować pokój dla jeszcze jednego członka rodziny.
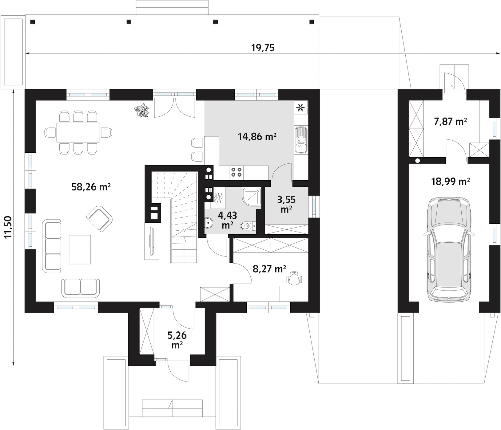
Dom z poddaszem i garażem jest klasycznym przykładem stylu skandynawskiego – nowoczesny i piękny w swojej prostocie. Charakterystyczne białe tynki w połączeniu z jasnymi, drewnianymi elementami tworzą idealną kompozycję, którą uzupełnia ganek oraz taras wyłożony beżowymi płytkami, a także antracytowy dach pokryty blachą na rąbek. Bryła domu oraz kształt dachu są bardzo nietypowe. Projekt domu z wjazdem od południa posiada garaż jednostanowiskowy. Ciekawym rozwiązaniem jest wiata, która może pełnić funkcję dodatkowego miejsca parkingowego. Można zaaranżować ją również jako przedłużenie zadaszonego tarasu, umożliwiającego odpoczywanie na świeżym powietrzu mimo niekorzystnych warunków atmosferycznych. To strefa, która da wytchnienie także w upalne dni.
minimalny wymiar działki | 27,75 × 20,50 m | |
wysokość | 8,67 m | |
powierzchnia podlogi |
powierzchnia zabudowy | 161,34 m2 | |
kąt nachylenia dachu | 40° |
Zakres prac
Standard podstawowy obejmuje wykonanie prefabrykowanej konstrukcji drewnianej szkieletowej oraz jej montaż na budowie. Przegrody zewnętrzne wykonywane są w technologii prefabrykacji z ciągłą, sklejoną warstwą paroizolacyjną, zapewniającą wysoką szczelność powietrzną budynku. Standard umożliwia przeprowadzenie próby szczelności (blower door) z wynikiem n50 < 1,0 1/h, typowym dla budynków o podwyższonych wymaganiach energetycznych (w tym pasywnych). W zakresie standardu przewidziano:
- Elewację zewnętrzną wykonaną na gotowo.
- Montaż stolarki okiennej i drzwi zewnętrznych w standardzie „ciepłego montażu”: mocowanie na prenitach/łącznikach montażowych, uszczelnienie warstwowe taśmami — od strony wewnętrznej połączenie z warstwą paro-/powietrznoszczelną, od strony zewnętrznej zabezpieczenie w strefie złącza zgodnie z zasadą „szczelniej wewnątrz niż na zewnątrz”.
- Konstrukcję dachu na dźwigarach, ocieplenie połaci dachu zasypem z celulozy 30 cm oraz wykonanie pokrycia dachu.
- Ściany wewnętrzne wykonane jako otwarte z jednej strony, przygotowane do prowadzenia i montażu instalacji.
- Ściany zewnętrzne zakończone przedścianką instalacyjną, umożliwiającą prowadzenie instalacji bez naruszania warstwy szczelnej (paroizolacji).
Płyta fundamentowa to kompletny, przygotowany „start” pod montaż budynku stabilny, równy i dobrze zaizolowany. W ramach prac wykonujemy wykop oraz jeśli warunki gruntowe tego wymagają wymianę gruntu w celu uzyskania odpowiedniej nośności i ograniczenia osiadań.
Następnie wykonujemy rozprowadzenie kanalizacji pod płytą wraz z podejściami, przepustami i wyprowadzeniami zgodnie z projektem.
Przygotowujemy również przejście (wejście) wody do budynku oraz przepust/wyprowadzenie pod zasilanie elektryczne, tak aby instalacje były gotowe bez kucia i przeróbek na późniejszym etapie. Pod płytą układamy izolację termiczną z XPS o grubości 10 cm, która ogranicza straty ciepła do gruntu i poprawia parametry energetyczne strefy posadowienia. Na końcu wykonujemy równą płytę fundamentową o kontrolowanej geometrii (rzędne, poziomy), przygotowaną pod precyzyjny montaż prefabrykowanego budynku. Dzięki temu montaż przebiega sprawnie, a cała konstrukcja pracuje stabilnie od pierwszego dnia.
Wykończenie do stanu deweloperskiego to etap, w którym dom zyskuje pełną funkcjonalność i jest przygotowany pod finalne prace wykończeniowe. W ramach prac wykonujemy komplet niezbędnych instalacji: elektryczną, wodno-kanalizacyjną, ogrzewanie (zgodnie z projektem i uzgodnionym standardem) oraz wentylację mechaniczną z rekuperacją.
Rekuperacja zapewnia stałą, kontrolowaną wymianę powietrza i odzysk ciepła, co przekłada się na mniejsze straty energii, lepszą jakość powietrza, mniejszą wilgoć i wyższy komfort na co dzień. Dodatkowo wykonujemy komin spalinowy do kominka wraz z doprowadzeniem powietrza do spalania, przygotowany pod montaż wkładu kominkowego.
Następnie wypełniamy ściany działowe izolacją (akustyczną/termiczną zależnie od przegrody), po czym wykonujemy zamknięcie ścian płytami GK wraz z przygotowaniem powierzchni pod dalsze wykończenie. Całość domykają posadzki, wykonane równo i w poziomie, gotowe pod ułożenie warstw finalnych. Efektem jest dom w standardzie deweloperskim: z rozprowadzonymi mediami, wykonaną wentylacją z rekuperacją, przygotowanym kominem pod kominek oraz gotowymi przegrodami i posadzkami.
Wykończenie pod klucz to kompletny etap wykończeniowy, w którym dom zostaje doprowadzony do stanu gotowego do zamieszkania z wykonanymi okładzinami, łazienkami, podłogami, drzwiami wewnętrznymi, malowaniem i pełnym montażem osprzętu oraz wyposażenia zgodnie z ustalonym standardem. To rozwiązanie dla osób, które chcą odebrać dom w pełni wykończony, bez koordynowania ekip i pilnowania dziesiątek decyzji po drodze.
Aby przyjąć zlecenie „pod klucz” i rzetelnie je wycenić, inwestor musi posiadać projekt wnętrza (zakres materiałów, układ funkcjonalny, punkty instalacyjne, zestawienia i standard wykończenia). Na jego podstawie przygotowujemy dokładny kosztorys oraz harmonogram prac, tak aby końcowy efekt był zgodny z założeniami estetycznymi i budżetem.
Kotłownia i źródło ciepła to kompletne przygotowanie oraz wykonanie instalacji grzewczej wraz z doborem i montażem urządzeń – zgodnie z projektem, zapotrzebowaniem budynku i preferencjami inwestora. W zależności od standardu i dostępnych mediów możemy zrealizować różne warianty źródła ciepła oraz konfiguracje kotłowni. Możliwe warianty źródła ciepła / kotłowni:
- Pompa ciepła powietrze–woda (najczęściej wybierana) – z buforem i/lub zasobnikiem CWU.
- Pompa ciepła gruntowa – wyższa stabilność pracy, wymaga dolnego źródła (odwierty/kolektor).
- Kocioł gazowy kondensacyjny (jeśli jest przyłącze gazu) – z zasobnikiem CWU.
- Kocioł na pellet / biomasę – z zasobnikiem paliwa i odpowiednim odprowadzeniem spalin.
- Ogrzewanie elektryczne (np. kable/maty lub piec elektryczny do CO/CWU) – proste instalacyjnie, zależne od taryf i cen energii.
- Kominek jako źródło dodatkowe (rekreacyjne/awaryjne) – z doprowadzeniem powietrza, opcjonalnie z dystrybucją ciepła lub płaszczem wodnym (jeśli projekt przewiduje).
- Hybryda (np. pompa ciepła + grzałka, pompa ciepła + PV, gaz + pompa) – dopasowana do budżetu i warunków.
Typowe elementy w zakresie kotłowni (w zależności od wariantu):
- uruchomienie i podstawowa regulacja instalacji.
- montaż urządzenia grzewczego i osprzętu (armatura, zabezpieczenia, pompy obiegowe),
- zasobnik CWU / bufor (jeśli wymagane),
- rozdzielacze i automatyka sterująca,
Projekt domu dużego
Projekt domu dużego
Realizacje
Każdy dom to inna historia, ale wspólna idea – prostota, funkcjonalność i energooszczędność.
FAQ
Tak — wspieramy klientów na każdym etapie, od projektu po komplet dokumentów niezbędnych do realizacji inwestycji.
Tak — nasze domy są przystosowane do użytkowania przez cały rok, również w warunkach zimowych.
Każda inwestycja wymaga pozwolenia na budowę lub zgłoszenia. Najczęściej rekomendujemy procedurę pozwolenia, ponieważ daje większe możliwości, a czas realizacji jest zbliżony. Pomagamy przejść przez cały proces.
Tak — wiele projektów można dostosować do indywidualnych potrzeb.
BUDOWA DOMÓW MODUŁOWYCH W 3 MIESIĄCE
Dzięki właściwej organizacji pracy możemy połączyć w jednym czasie: prefabrykacje elementów w fabryce z robotami ziemnymi i posadowieniem fundamentów na placu budowy. Średni czas montażu na placu budowy to 2-4 dni. Krótki czas budowy i przewidywalny koszt inwestycji to oszczędność czasu i pieniędzy
Dom to coś więcej niż projekt i materiały – to przestrzeń, w której codzienność staje się spokojniejsza, a życie po prostu dobrze się układa. W tej galerii pokazujemy gotowe domy prefabrykowane, które powstały z drewna w technologii lekkiego szkieletu – energooszczędne, funkcjonalne i dopasowane do różnych potrzeb. Każdy z nich ma swój charakter, ale łączy je podejście oparte na prostocie, wygodzie i harmonii z otoczeniem. Inspirujemy się stylem skandynawskim, który stawia na jasne wnętrza, naturalne materiały i rozsądne rozwiązania. Budujemy z myślą o tym, by dom dobrze służył na co dzień – niezależnie od tego, czy ma 50 czy 150 metrów. Jeśli szukasz pomysłu na swój przyszły dom, być może właśnie tutaj znajdziesz coś, co będzie dobrym początkiem.












